© 2026. Professionals New Zealand, Licensed REAA 2008
3
1
1
153m2
767
m2
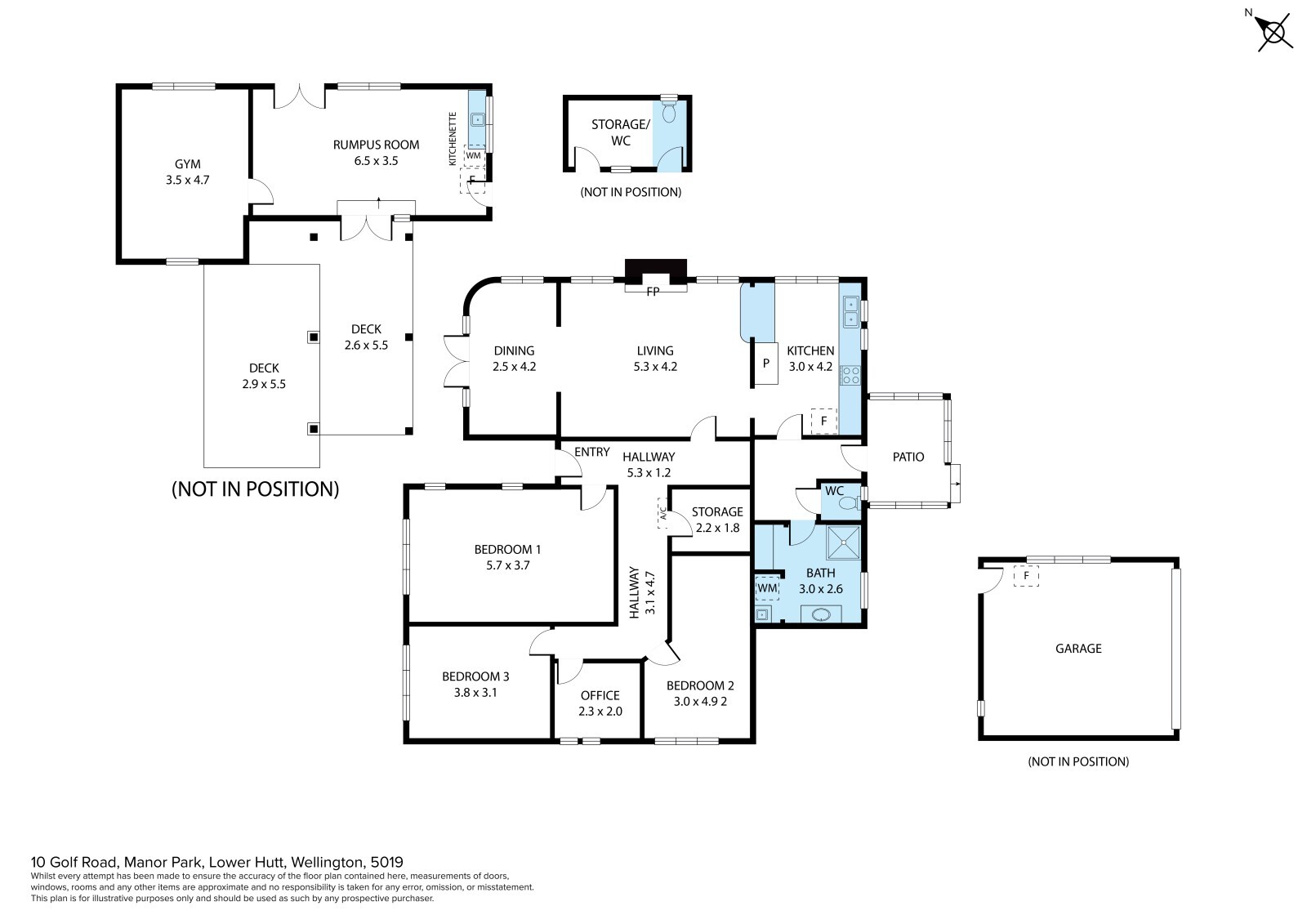
10 Golf Road
Manor Park, Lower Hutt
SOLD
SPACIOUS 3 BEDROOM + STUDY + LARGE RUMPUS
This generously sized home offers flexible living and fantastic outdoor spaces, perfect for growing families, work-from-home setups, or those seeking room to spread out.
Open plan kitchen, dining, and living area opens out to a covered deck, complete with louvres, ideal for all weather
entertaining. The large master bedroom, two additional double bedrooms, plus a study/nursery, ensure space for everyone.
Once used as a community dairy, the detached rumpus room with two large rooms and its own entrance, is perfect as a home office, gym, playroom, theatre, or whatever suits your family's lifestyle.
Expansive 767sqm fully fenced section offers a safe and secure area for children and pets to freely play and explore. An extra perk is the large council-maintained reserve situated at the heart of The Square, providing a communal space where children can enjoy games of cricket, picnics, and playful moments on the tree swings.
Additional features this property has to offer:
- Gas Fire plus additional heaters
- Family bathroom with laundry area
- Separate toilet
- Internal storage room
- Large swim spa pool
- Covered porch at back entrance
- Large shed with outdoor toilet
- New roof on rumpus room
- Exterior recently repainted
- Single garage
Conveniently close to:
- Manor Park Golf Course, featuring a cafe at the clubhouse
- Beautiful river-walk and cycleway, with new pipe bridge over the Hutt River opening soon
- Entrance to Belmont Regional Park
- Motorway to Wellington and Transmission Gulley
- Manor Park Train Station
Become part of this close-knit, family friendly community, give me a call today to arrange a viewing time.
Open plan kitchen, dining, and living area opens out to a covered deck, complete with louvres, ideal for all weather
entertaining. The large master bedroom, two additional double bedrooms, plus a study/nursery, ensure space for everyone.
Once used as a community dairy, the detached rumpus room with two large rooms and its own entrance, is perfect as a home office, gym, playroom, theatre, or whatever suits your family's lifestyle.
Expansive 767sqm fully fenced section offers a safe and secure area for children and pets to freely play and explore. An extra perk is the large council-maintained reserve situated at the heart of The Square, providing a communal space where children can enjoy games of cricket, picnics, and playful moments on the tree swings.
Additional features this property has to offer:
- Gas Fire plus additional heaters
- Family bathroom with laundry area
- Separate toilet
- Internal storage room
- Large swim spa pool
- Covered porch at back entrance
- Large shed with outdoor toilet
- New roof on rumpus room
- Exterior recently repainted
- Single garage
Conveniently close to:
- Manor Park Golf Course, featuring a cafe at the clubhouse
- Beautiful river-walk and cycleway, with new pipe bridge over the Hutt River opening soon
- Entrance to Belmont Regional Park
- Motorway to Wellington and Transmission Gulley
- Manor Park Train Station
Become part of this close-knit, family friendly community, give me a call today to arrange a viewing time.
Property ID: RED26706
10 Golf Road, Manor Park, Lower Hutt
Try Out the NZHL
Mortgage Calculator
Places we love

