© 2026. Professionals New Zealand, Licensed REAA 2008
1
4
2
2
258m2
702
m2
10 Hudson Place
Paraparaumu, Kapiti
SOLD
DEADLINE BROUGHT FORWARD - OPEN HOME CANCELLED
IMPORTANT: Please note the deadline for this property is now 12pm Sunday October 6th. The open home has been cancelled.
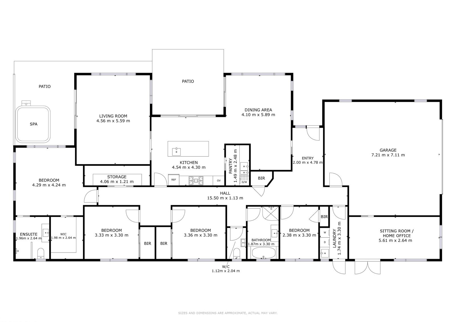
10 Hudson Place is the epitome of contemporary family living. With a meticulous design that flawlessly combines style and functionality, this residence is an incredible find for both growing families and those seeking a spacious single-level home with all the modern conveniences.
Upon entering, you'll be welcomed by exceptionally wide entranceways and hallways, setting the tone for the spacious elegance that awaits within. The home features four generously sized double bedrooms, the expansive premier suite is a highlight, boasting the largest walk-in robe you’re likely to see, complemented by a spacious ensuite.
The heart of the home is the entertainment hub, defined by a spacious open-plan kitchen complete with a butler's pantry. This area flows seamlessly into the dining and lounge spaces, with multiple patio areas accessible from these central rooms. The exceptional indoor-outdoor flow allows for easy entertaining, whether you’re hosting a summer barbecue or a cosy winter gathering under the covered pergola.
The practical layout continues to impress with a separate laundry and an oversized laundry cupboard, designed to make family living as effortless as possible. The home is fully double-glazed and insulated, with central heating and gas infinity hot water, ensuring year-round comfort.
The exterior of the property offers a full-sized and fully fenced low-maintenance section. Multiple outdoor living areas provide flexibility and ease of use, allowing you to enjoy alfresco dining, relaxed lounging, or a spot of gardening whenever you please.
The internal double garage, also features a home office studio. This versatile space opens up a world of possibilities - whether you need a dedicated office for remote work, a cosy sitting area, or even a man cave, you can tailor it to suit your needs perfectly.
Moreover, the location is nothing short of ideal. Don't let this exceptional opportunity pass you by, this home offers everything you need and more. Secure your future in Paraparaumu's sought-after community and make 10 Hudson Place your forever home.
- Spacious family home
- Fully double glazed and insulated
- Master with ensuite & walk-in-robe
- Office or sitting area
- Separate laundry
- Central heating
Deadline sale closing at 28 Cornwall St, 12pm 6th Oct (unless sold prior)
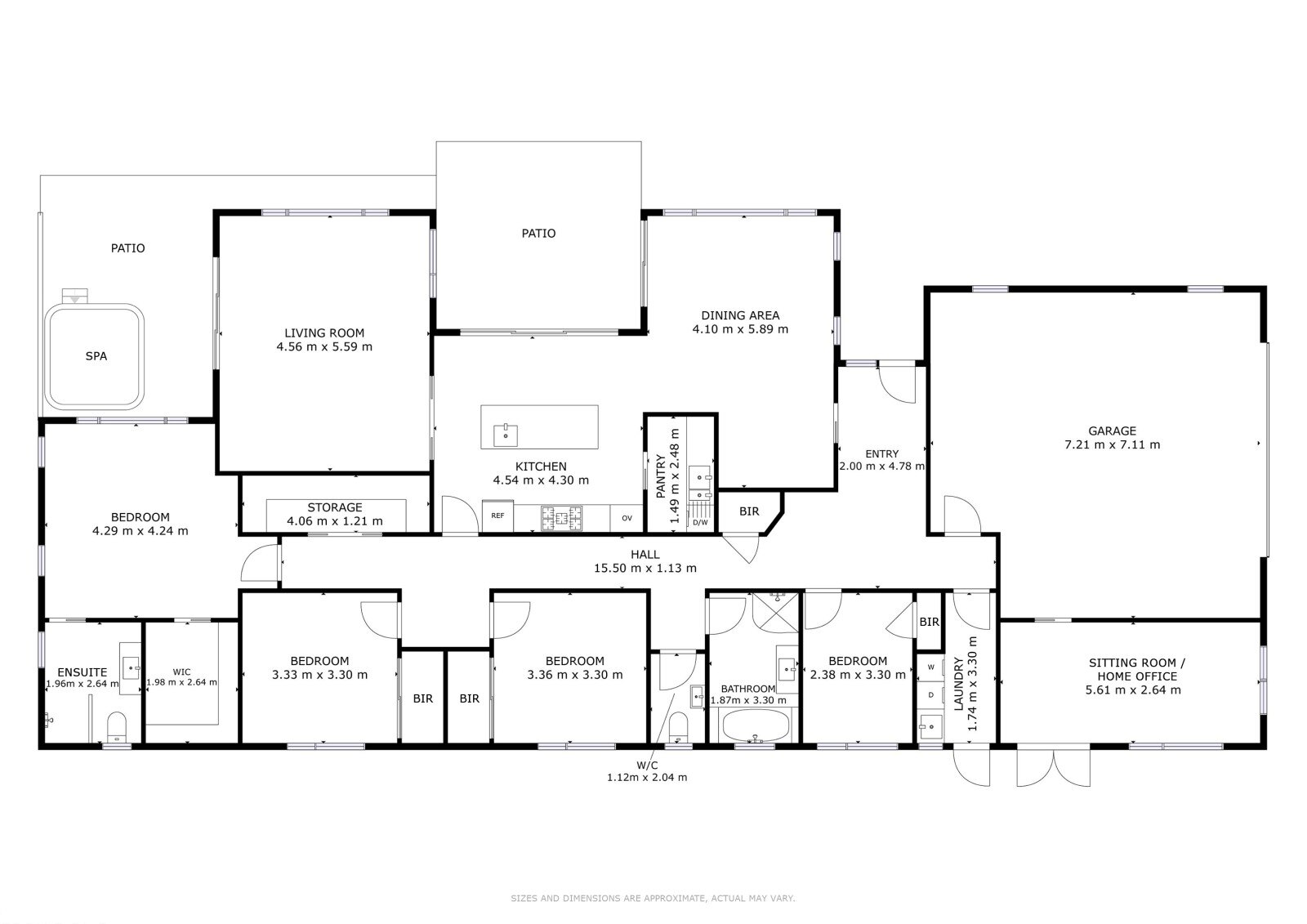
10 Hudson Place is the epitome of contemporary family living. With a meticulous design that flawlessly combines style and functionality, this residence is an incredible find for both growing families and those seeking a spacious single-level home with all the modern conveniences.
Upon entering, you'll be welcomed by exceptionally wide entranceways and hallways, setting the tone for the spacious elegance that awaits within. The home features four generously sized double bedrooms, the expansive premier suite is a highlight, boasting the largest walk-in robe you’re likely to see, complemented by a spacious ensuite.
The heart of the home is the entertainment hub, defined by a spacious open-plan kitchen complete with a butler's pantry. This area flows seamlessly into the dining and lounge spaces, with multiple patio areas accessible from these central rooms. The exceptional indoor-outdoor flow allows for easy entertaining, whether you’re hosting a summer barbecue or a cosy winter gathering under the covered pergola.
The practical layout continues to impress with a separate laundry and an oversized laundry cupboard, designed to make family living as effortless as possible. The home is fully double-glazed and insulated, with central heating and gas infinity hot water, ensuring year-round comfort.
The exterior of the property offers a full-sized and fully fenced low-maintenance section. Multiple outdoor living areas provide flexibility and ease of use, allowing you to enjoy alfresco dining, relaxed lounging, or a spot of gardening whenever you please.
The internal double garage, also features a home office studio. This versatile space opens up a world of possibilities - whether you need a dedicated office for remote work, a cosy sitting area, or even a man cave, you can tailor it to suit your needs perfectly.
Moreover, the location is nothing short of ideal. Don't let this exceptional opportunity pass you by, this home offers everything you need and more. Secure your future in Paraparaumu's sought-after community and make 10 Hudson Place your forever home.
- Spacious family home
- Fully double glazed and insulated
- Master with ensuite & walk-in-robe
- Office or sitting area
- Separate laundry
- Central heating
Deadline sale closing at 28 Cornwall St, 12pm 6th Oct (unless sold prior)
Property ID: RED26136
10 Hudson Place, Paraparaumu, Kapiti
Try Out the NZHL
Mortgage Calculator
Places we love

