© 2026. Professionals New Zealand, Licensed REAA 2008
3
2
1
210m2
1076
m2
100a Korokoro Road
Korokoro, Lower Hutt
SOLD
DEADLINE CLOSING DATE BROUGHT FORWARD
PLEASE NOTE - The Deadline Sale closing date has been brought forward to this Friday, 8th November 2024
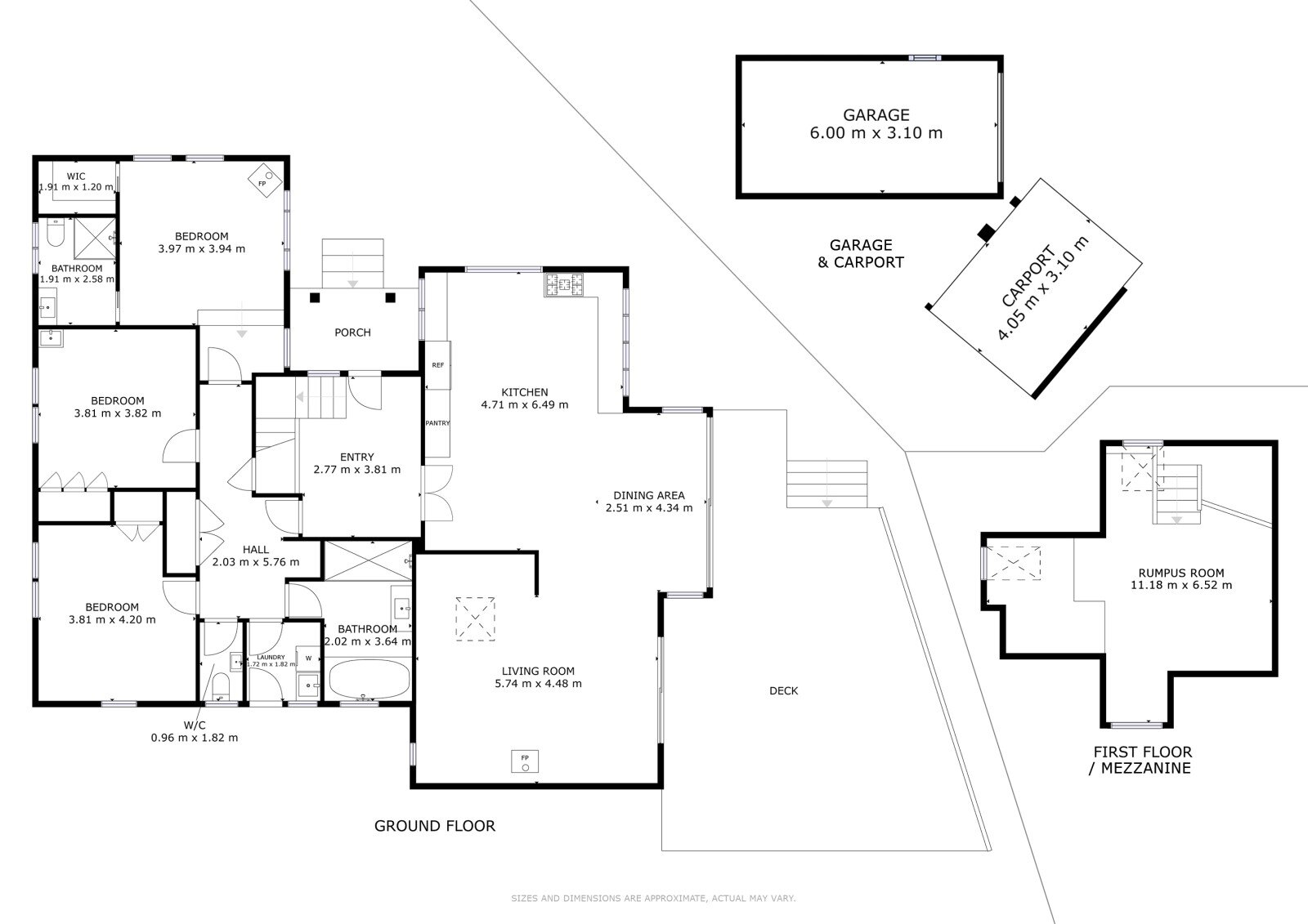
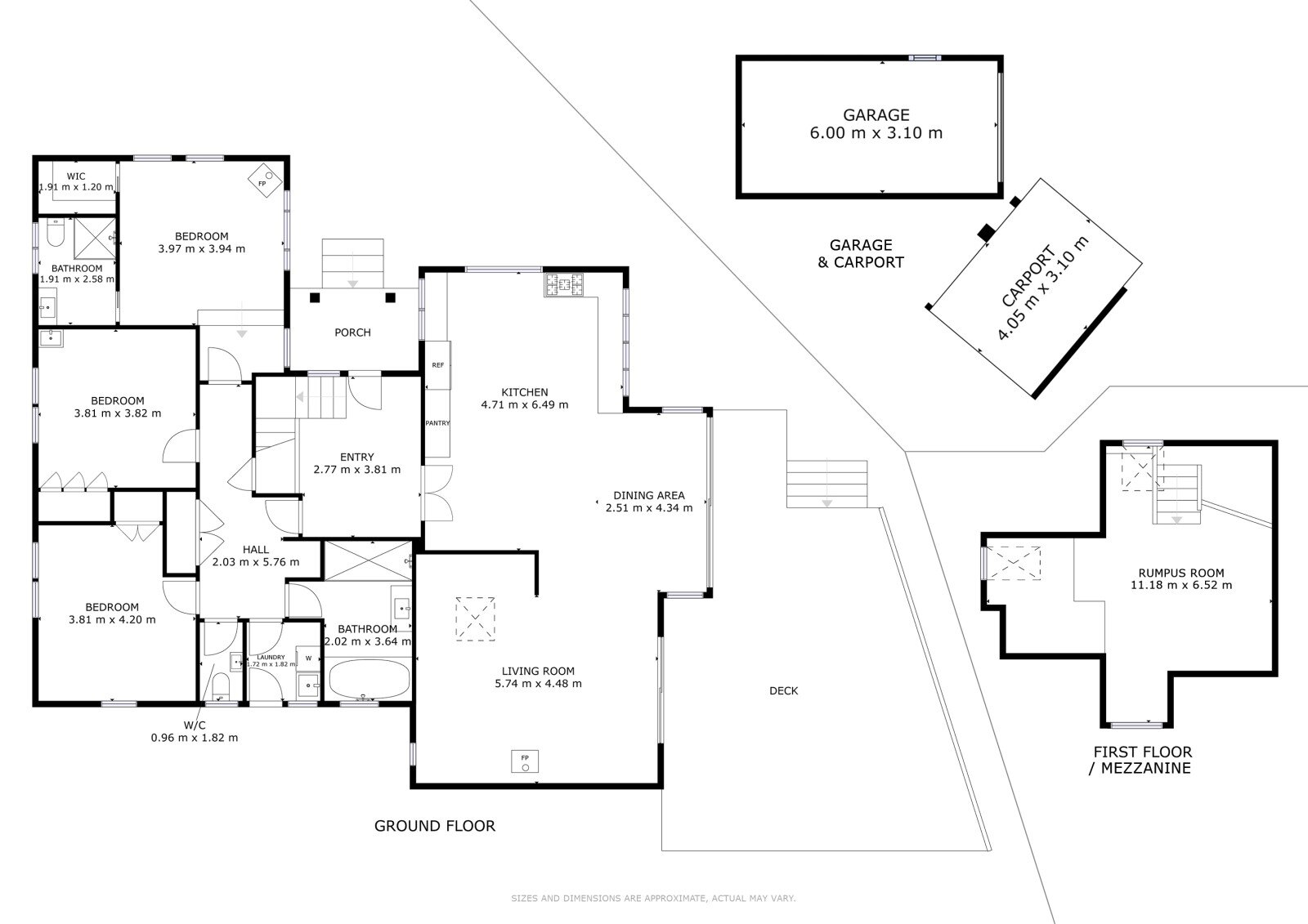
Discover this exceptional home nestled in the heart of Korokoro, with the highly sought-after local school just up the road.
This stunning three-bedroom home, complete with a versatile mezzanine rumpus room, offers an enchanting retreat with privacy, landscaped gardens, and a symphony of birdsong.
This home boasts an expansive open-plan living area with beautiful, polished timber floors and an ultramodern kitchen that truly is the heart of this home. This flows into a spacious lounge with a study nook - perfect for those working from home.
Indoor-outdoor living here is outstanding, with options to relax and entertain on the fabulous deck or in other cosy outdoor areas.
Key Features:
- Spacious open plan living
- Beautiful, polished timber floors
- Ultra-modern kitchen
- Fabulous deck along with multiple outdoor areas
- Generous lounge with a study nook
- Large mezzanine rumpus room
- Master suite with walk-in wardrobe and modern ensuite
- Two additional double bedrooms
- Modern family bathroom - separate toilet
- Separate laundry room
- Mostly double-glazed windows
- Two wood burners, heat pump, heat transfer system
- Storage shed, woodshed, and a quirky outbuilding with a toilet
- Single garage, carport
- Re-roofed, re-wired
- Ceiling insulation (pink batt)
- Fantastic local full primary school & playcentre
- Zoned for Hutt Valley High School
- Lovely bush walks in surrounding parks and reserve
- Short distance to Petone train station
- Close proximity to Petone CBD, beach, restaurants, and shops
- Easy motorway access to Wellington
This Korokoro gem is an absolute must-see. Be in quick, call today to arrange a viewing.
Deadline Sale closing at 28 Cornwall St, 4pm Fri 8 Nov (will not be sold prior)
Discover this exceptional home nestled in the heart of Korokoro, with the highly sought-after local school just up the road.
This stunning three-bedroom home, complete with a versatile mezzanine rumpus room, offers an enchanting retreat with privacy, landscaped gardens, and a symphony of birdsong.
This home boasts an expansive open-plan living area with beautiful, polished timber floors and an ultramodern kitchen that truly is the heart of this home. This flows into a spacious lounge with a study nook - perfect for those working from home.
Indoor-outdoor living here is outstanding, with options to relax and entertain on the fabulous deck or in other cosy outdoor areas.
Key Features:
- Spacious open plan living
- Beautiful, polished timber floors
- Ultra-modern kitchen
- Fabulous deck along with multiple outdoor areas
- Generous lounge with a study nook
- Large mezzanine rumpus room
- Master suite with walk-in wardrobe and modern ensuite
- Two additional double bedrooms
- Modern family bathroom - separate toilet
- Separate laundry room
- Mostly double-glazed windows
- Two wood burners, heat pump, heat transfer system
- Storage shed, woodshed, and a quirky outbuilding with a toilet
- Single garage, carport
- Re-roofed, re-wired
- Ceiling insulation (pink batt)
- Fantastic local full primary school & playcentre
- Zoned for Hutt Valley High School
- Lovely bush walks in surrounding parks and reserve
- Short distance to Petone train station
- Close proximity to Petone CBD, beach, restaurants, and shops
- Easy motorway access to Wellington
This Korokoro gem is an absolute must-see. Be in quick, call today to arrange a viewing.
Deadline Sale closing at 28 Cornwall St, 4pm Fri 8 Nov (will not be sold prior)
Property ID: RED26155
100a Korokoro Road, Korokoro, Lower Hutt
Try Out the NZHL
Mortgage Calculator
Places we love

