© 2026. Professionals New Zealand, Licensed REAA 2008
3
1
1
92m2
810
m2
160 South Road
Spotswood, New Plymouth
SOLD
ENDLESS POSSIBILITIES
Renovate, revive or clear the slate and build something brand new; the choice is yours at 160 South Road, Spotswood. Sitting on a generous 810sqm flat section, this 3 bedroom property offers incredible potential for those with vision.
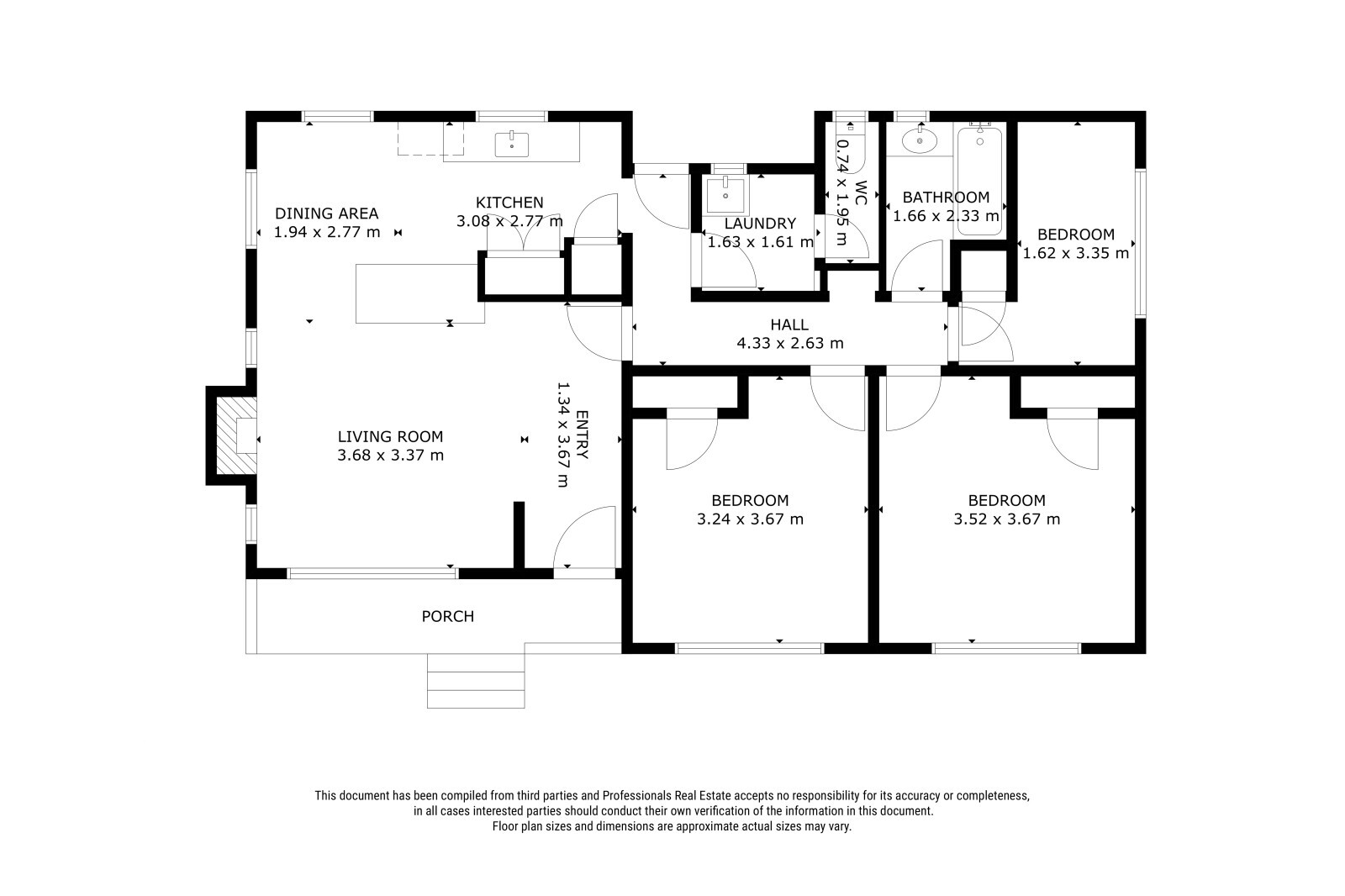
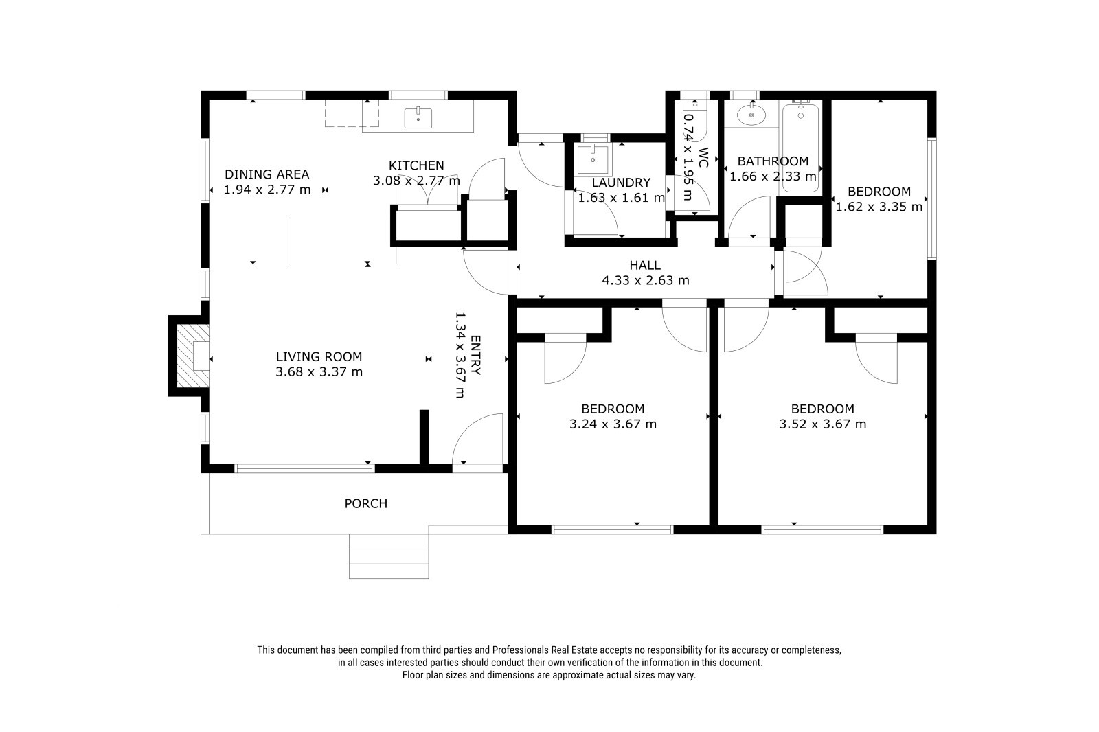
Fire damage is present inside, creating an opportunity for a full renovation or a complete rebuild to craft the home you’ve always imagined. The current layout includes open plan living, three bedrooms down the hallway, a bathroom with shower over bath and vanity, plus a separate toilet located past the laundry.
Outdoors, the expansive flat section opens the door to endless possibilities, think garaging, outdoor living, or future development.
Set in a convenient Spotswood location, you’re across the road from Spotswood Primary and just a quick stroll to all other Spotswood schooling options, the supermarket also just a quick walk up the street. This is a great spot for families after a reno project or saavy investors. Call Sam or Sarah today. Deadline Sale, Thursday 11th December at 12pm (if not sold prior).
Fire damage is present inside, creating an opportunity for a full renovation or a complete rebuild to craft the home you’ve always imagined. The current layout includes open plan living, three bedrooms down the hallway, a bathroom with shower over bath and vanity, plus a separate toilet located past the laundry.
Outdoors, the expansive flat section opens the door to endless possibilities, think garaging, outdoor living, or future development.
Set in a convenient Spotswood location, you’re across the road from Spotswood Primary and just a quick stroll to all other Spotswood schooling options, the supermarket also just a quick walk up the street. This is a great spot for families after a reno project or saavy investors. Call Sam or Sarah today. Deadline Sale, Thursday 11th December at 12pm (if not sold prior).
Property ID: NAKI3646
160 South Road, Spotswood, New Plymouth
Try Out the NZHL
Mortgage Calculator
Places we love

