© 2026. Professionals New Zealand, Licensed REAA 2008
4
1
2
270m2
1684
m2
164A Tukapa Street
Westown, New Plymouth
SOLD
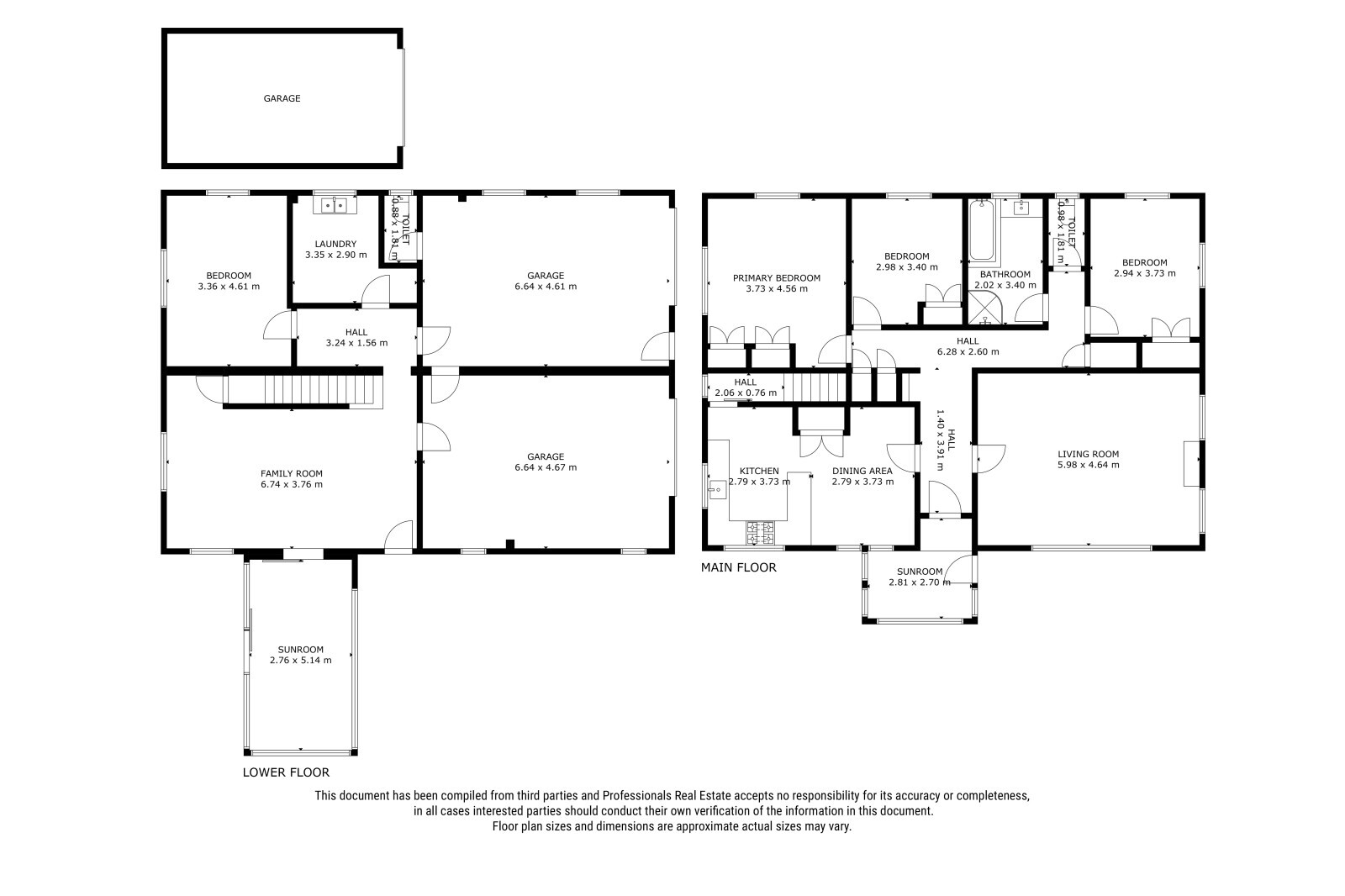
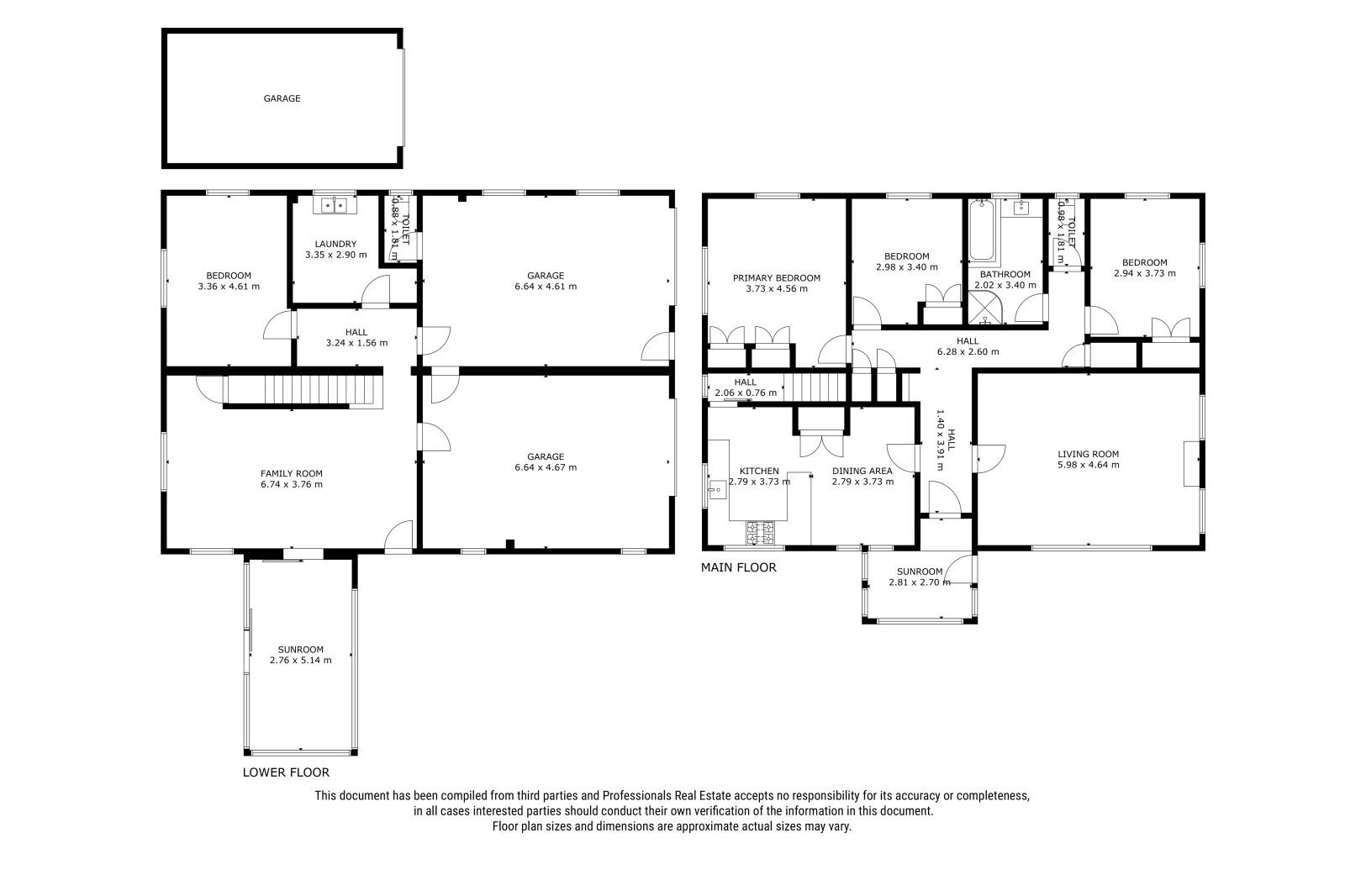
SOLID HOME, ENDLESS POSSIBILITIES
Are you searching for a solidly built brick and block home with low maintenance aluminium joinery and plenty of space for the whole family? This classic 1970s residence offers timeless charm, generous proportions, and a layout designed for easy family living.
Step inside to discover a spacious open plan living area that flows seamlessly through to the kitchen and dining space, and onwards into a sunny, north facing sun room, the perfect spot to relax and unwind. With four generously sized bedrooms, a full family bathroom, and a separate toilet, there is ample room for everyone.
Downstairs, you will find a separate laundry and internal access to a large double garage, complete with a workshop area, ideal for hobbies, storage, or tinkering. There is also the bonus of additional off street parking for extra convenience.
Set on a substantial 1684m2 section with beautifully established grounds, this home presents a rare opportunity for families seeking space, privacy, and potential.
Do not miss your chance to secure this solid family home with room to grow, arrange your viewing today!
To view the online property file click or copy the link https://propertyfile.nz/164a-tukapa-street
Step inside to discover a spacious open plan living area that flows seamlessly through to the kitchen and dining space, and onwards into a sunny, north facing sun room, the perfect spot to relax and unwind. With four generously sized bedrooms, a full family bathroom, and a separate toilet, there is ample room for everyone.
Downstairs, you will find a separate laundry and internal access to a large double garage, complete with a workshop area, ideal for hobbies, storage, or tinkering. There is also the bonus of additional off street parking for extra convenience.
Set on a substantial 1684m2 section with beautifully established grounds, this home presents a rare opportunity for families seeking space, privacy, and potential.
Do not miss your chance to secure this solid family home with room to grow, arrange your viewing today!
To view the online property file click or copy the link https://propertyfile.nz/164a-tukapa-street
Property ID: NAKI3579
164A Tukapa Street, Westown, New Plymouth
Try Out the NZHL
Mortgage Calculator
Places we love

