© 2026. Professionals New Zealand, Licensed REAA 2008
2
1
1
90m2
42B Sackville Street
Fitzroy, New Plymouth
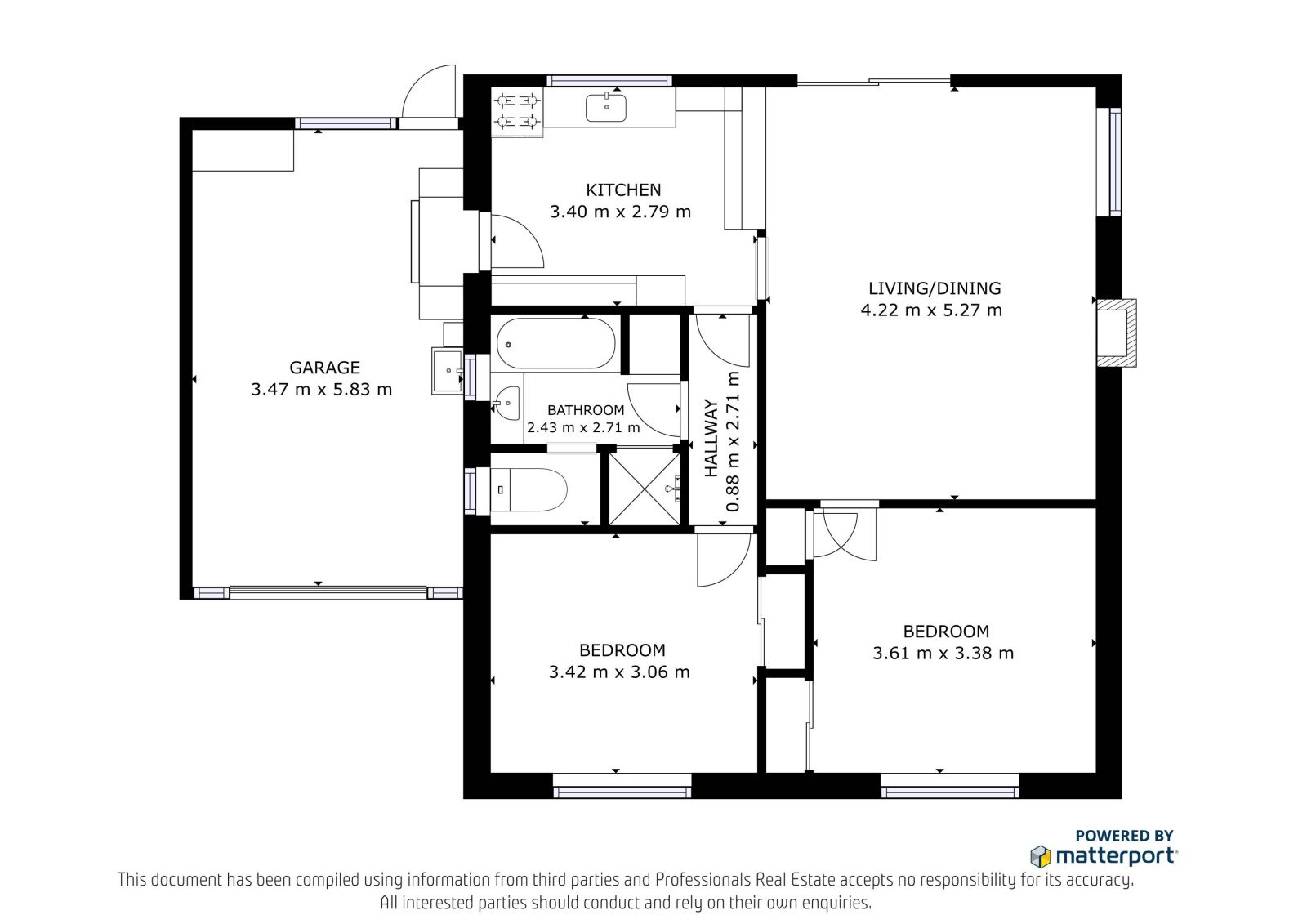
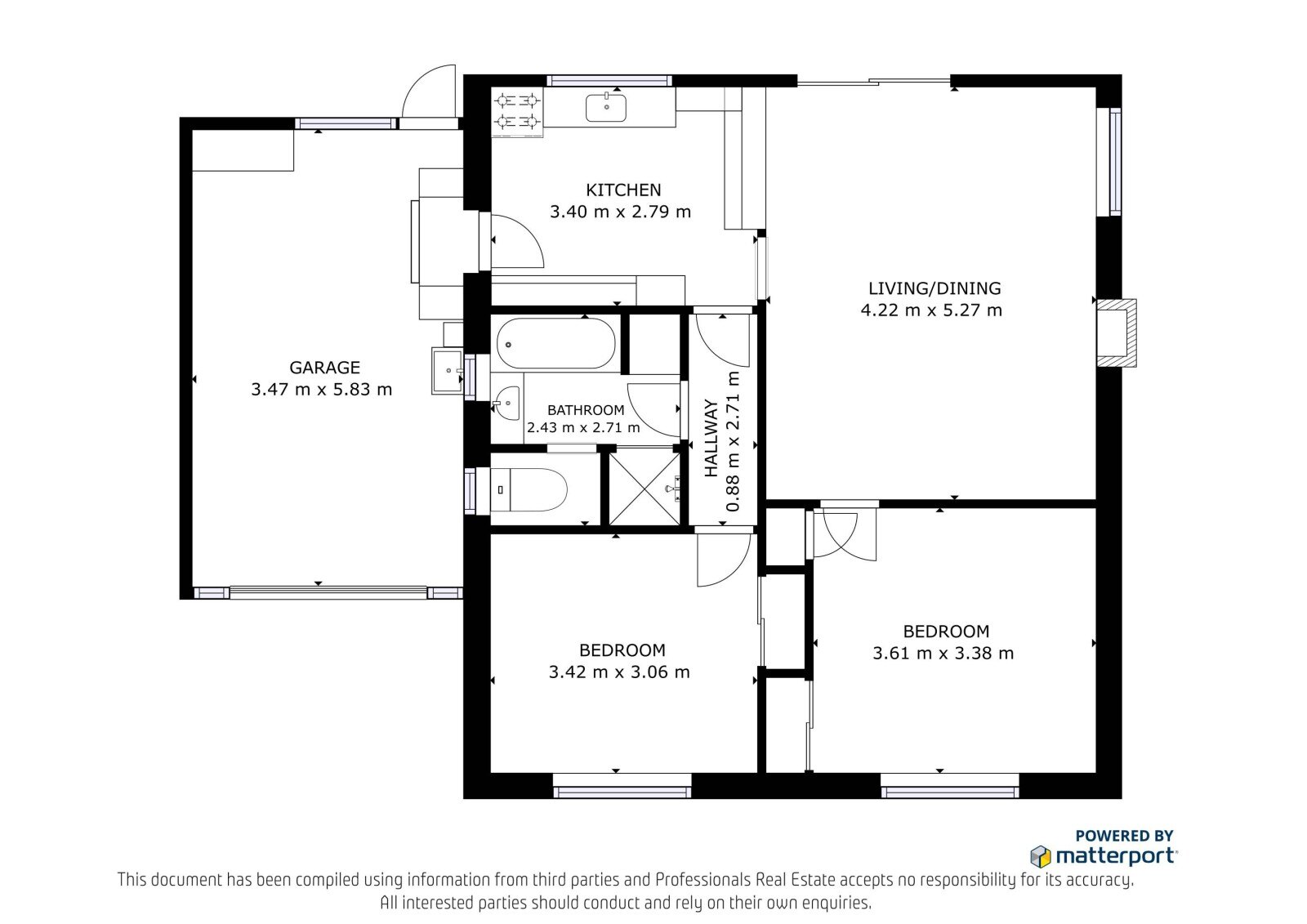
CENTRAL 2 BEDROOM IN FITZROY
Looking for the perfect unit in the heart of Fitzroy? Just a few steps from the shops and a short stroll down the street to the beautiful Fitzroy Beach, 42b Sackville Street offers great convenience and lifestyle. This fabulous two bedroom brick townhouse has been refreshed with brand new carpet throughout, new curtains installed and a freshen up of paint.
Step inside to discover a spacious kitchen with freshly painted cabinetry. The sun soaked open plan dining and living area provides a warm, inviting space to relax and entertain. Both double bedrooms are generously sized and feature built in wardrobes, while the bathroom offers a shower and bath for your comfort.
Practicality meets ease with internal access to a single garage, complete with steps leading directly to the kitchen. Situated on a crosslease section with a shared driveway, this home offers a low maintenance lifestyle in a prime location; perfect if you are looking to downsize or after your first home.
With vacant possession, 42b Sackville Street is ready and waiting for you to make it your own. Don’t miss this opportunity, it’s a home that won’t stay on the market for long. Call Sam or Sarah today to view.
Step inside to discover a spacious kitchen with freshly painted cabinetry. The sun soaked open plan dining and living area provides a warm, inviting space to relax and entertain. Both double bedrooms are generously sized and feature built in wardrobes, while the bathroom offers a shower and bath for your comfort.
Practicality meets ease with internal access to a single garage, complete with steps leading directly to the kitchen. Situated on a crosslease section with a shared driveway, this home offers a low maintenance lifestyle in a prime location; perfect if you are looking to downsize or after your first home.
With vacant possession, 42b Sackville Street is ready and waiting for you to make it your own. Don’t miss this opportunity, it’s a home that won’t stay on the market for long. Call Sam or Sarah today to view.
Property ID: NAKI3465
42B Sackville Street, Fitzroy, New Plymouth
Try Out the NZHL
Mortgage Calculator
&office_id=3000000054&limit=10&status=current&orderBy=-hs_id
59-fifth-avenue-urenui-new-plymouth-taranaki-naki3681 : https://content.professionals.co.nz/hubfs/property_images/NAKI3681/3003222461_1600-0.jpeg
10-chard-street-westown-new-plymouth-taranaki-naki3673 : https://content.professionals.co.nz/hubfs/property_images/NAKI3673/3003222465_1600-0.jpeg
Places we love

