© 2026. Professionals New Zealand, Licensed REAA 2008
1
3
2
2
239m2
243
m2
6 Owhiro Bay Parade
Island Bay, Wellington City
SOLD
STUNNING LOCATION! AMAZING VALUE!
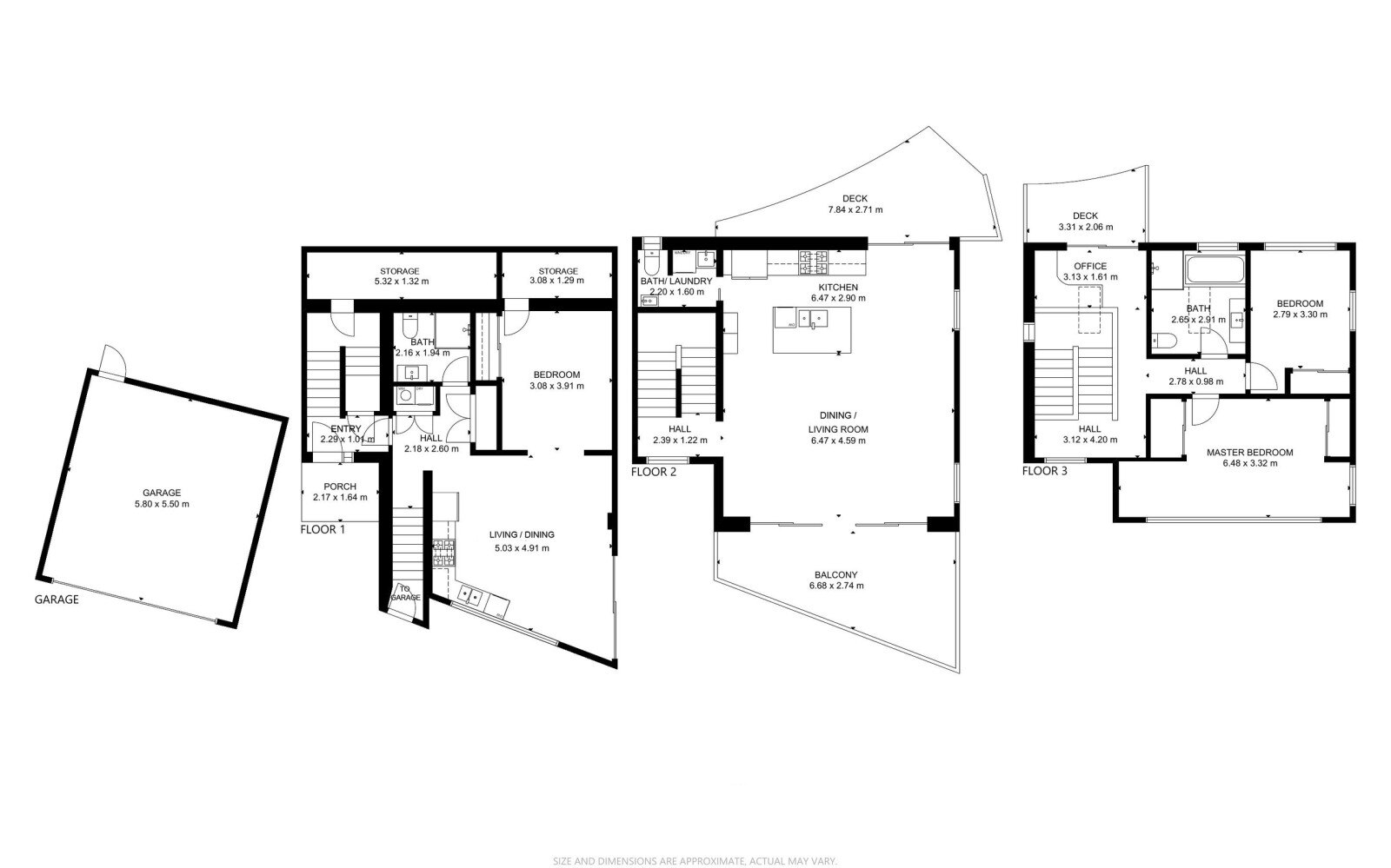
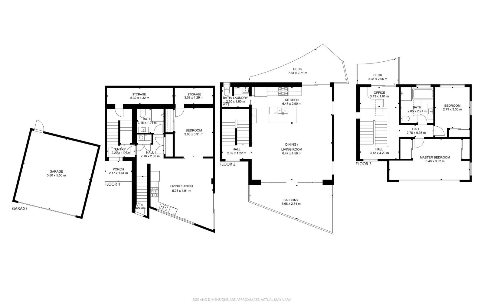
Welcome to this incredible opportunity to own a unique piece of real estate in the sought-after suburb of Owhiro Bay. Nestled in the heart of nature, this property boasts options as a three bedroom home OR two homes in one, offering a versatile lifestyle and a smart investment.
This property is so unique that it offers either:
Option 1 - A Three Bedroom Home with Two Kitchens and Two Bathrooms with 239m2 Floor area.
OR
Option 2 - A spacious Two bedroom, One bathroom home upstairs and a separate One bedroom apartment below.
Features include:
Bright and airy living spaces
Two well-appointed kitchens and two stunning bathrooms
Expansive open plan living and dining areas in both dwellings
Access to a fantastic outdoor living space
An open-plan office with breathtaking views in the upstairs Home
Double Garage with internal access
Plenty of room for storage or parking
Stunning Panoramic Views
West-facing to capture the best sunsets
Overlooking Owhiro Bay, Red Rocks, and the South Island
Built to Last
Steel-reinforced concrete in the lower level
Steel-framed upper levels for strength and durability
Highest quality Shera Bevel fiber cement weatherboards, perfect for the marine environment and always look great
Each dwelling separately metered for power and gas
Thoughtfully Designed
WCC Consented Multi-Unit Property
Additional Information:
239 sqm house on a 243 sqm section
Only one neighbour and very private
Multiple (large) internal storage spaces with lighting
Dual entrances provide supreme privacy
European gas-fired heating systems and high-end fittings
West-facing orientation for great sunlight
WCC LIM available upon request
Gas hot water and gas hobs in each dwelling
Don't miss out on this incredible opportunity to own a piece of paradise in Owhiro Bay. Contact Harry on 021777806 to request our comprehensive property information pack.
Viewing by appointment.
This property is so unique that it offers either:
Option 1 - A Three Bedroom Home with Two Kitchens and Two Bathrooms with 239m2 Floor area.
OR
Option 2 - A spacious Two bedroom, One bathroom home upstairs and a separate One bedroom apartment below.
Features include:
Bright and airy living spaces
Two well-appointed kitchens and two stunning bathrooms
Expansive open plan living and dining areas in both dwellings
Access to a fantastic outdoor living space
An open-plan office with breathtaking views in the upstairs Home
Double Garage with internal access
Plenty of room for storage or parking
Stunning Panoramic Views
West-facing to capture the best sunsets
Overlooking Owhiro Bay, Red Rocks, and the South Island
Built to Last
Steel-reinforced concrete in the lower level
Steel-framed upper levels for strength and durability
Highest quality Shera Bevel fiber cement weatherboards, perfect for the marine environment and always look great
Each dwelling separately metered for power and gas
Thoughtfully Designed
WCC Consented Multi-Unit Property
Additional Information:
239 sqm house on a 243 sqm section
Only one neighbour and very private
Multiple (large) internal storage spaces with lighting
Dual entrances provide supreme privacy
European gas-fired heating systems and high-end fittings
West-facing orientation for great sunlight
WCC LIM available upon request
Gas hot water and gas hobs in each dwelling
Don't miss out on this incredible opportunity to own a piece of paradise in Owhiro Bay. Contact Harry on 021777806 to request our comprehensive property information pack.
Viewing by appointment.
Property ID: RED26121
6 Owhiro Bay Parade, Island Bay, Wellington City
Try Out the NZHL
Mortgage Calculator
Places we love

