© 2026. Professionals New Zealand, Licensed REAA 2008
2
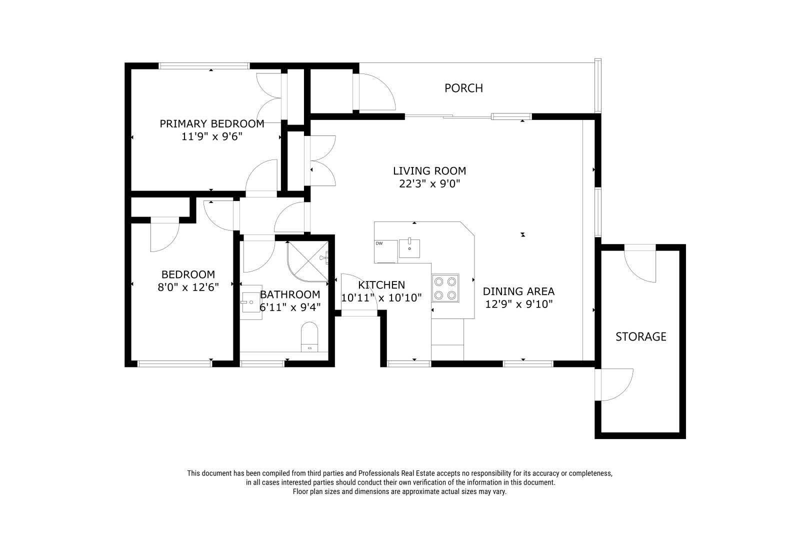
1
71m2
9B Brierley Place
Marfell, New Plymouth
SOLD
AFFORDABLE 2 BEDROOM PROJECT
If you’re handy with the tools or looking for your next renovation project, this one’s calling your name. The home offers two bedrooms, open plan living with high pitched ceilings and a tidy kitchen filled with natural light. Outside, the backyard is fully fenced, providing space for kids or visitors to enjoy.
There’s no denying this property needs a lot of work both inside and out including both cosmetic and structural, but with vision and effort it holds fantastic potential. It’s an ideal option for a tradie based first home buyer wanting to get on the property ladder and prepared to put in the hard yards to add value or investors searching for a project.
The vendors are realistic to accepting market value on this home given the work required and are prepared to consider all reasonable offers. Bring your imagination (and maybe your builder) and see the possibilities for yourself. Crosslease.
Vacant possession. Call today to arrange your viewing.
There’s no denying this property needs a lot of work both inside and out including both cosmetic and structural, but with vision and effort it holds fantastic potential. It’s an ideal option for a tradie based first home buyer wanting to get on the property ladder and prepared to put in the hard yards to add value or investors searching for a project.
The vendors are realistic to accepting market value on this home given the work required and are prepared to consider all reasonable offers. Bring your imagination (and maybe your builder) and see the possibilities for yourself. Crosslease.
Vacant possession. Call today to arrange your viewing.
Property ID: NAKI3582
9B Brierley Place, Marfell, New Plymouth
Try Out the NZHL
Mortgage Calculator
Places we love

