© 2026. Professionals New Zealand, Licensed REAA 2008
227m2
Tenancy 2-15 Milson Line
Milson, Palmerston North
FOR LEASE :
By Negotiation
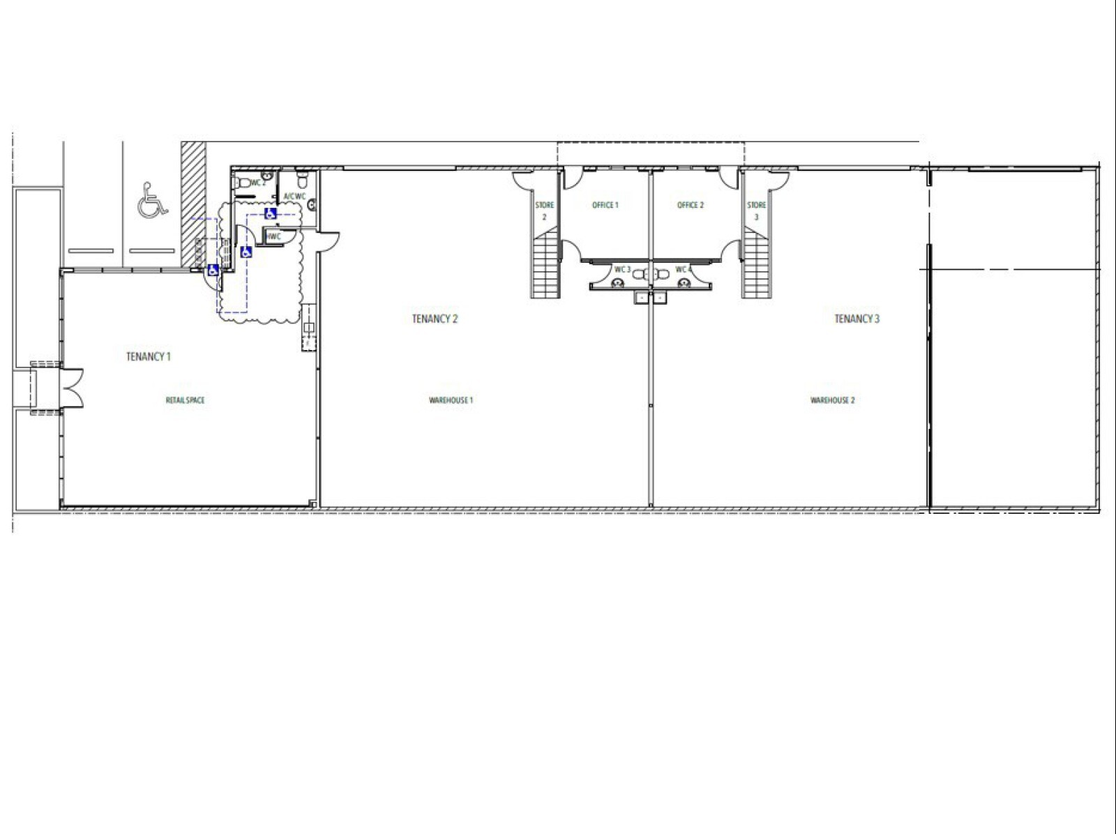
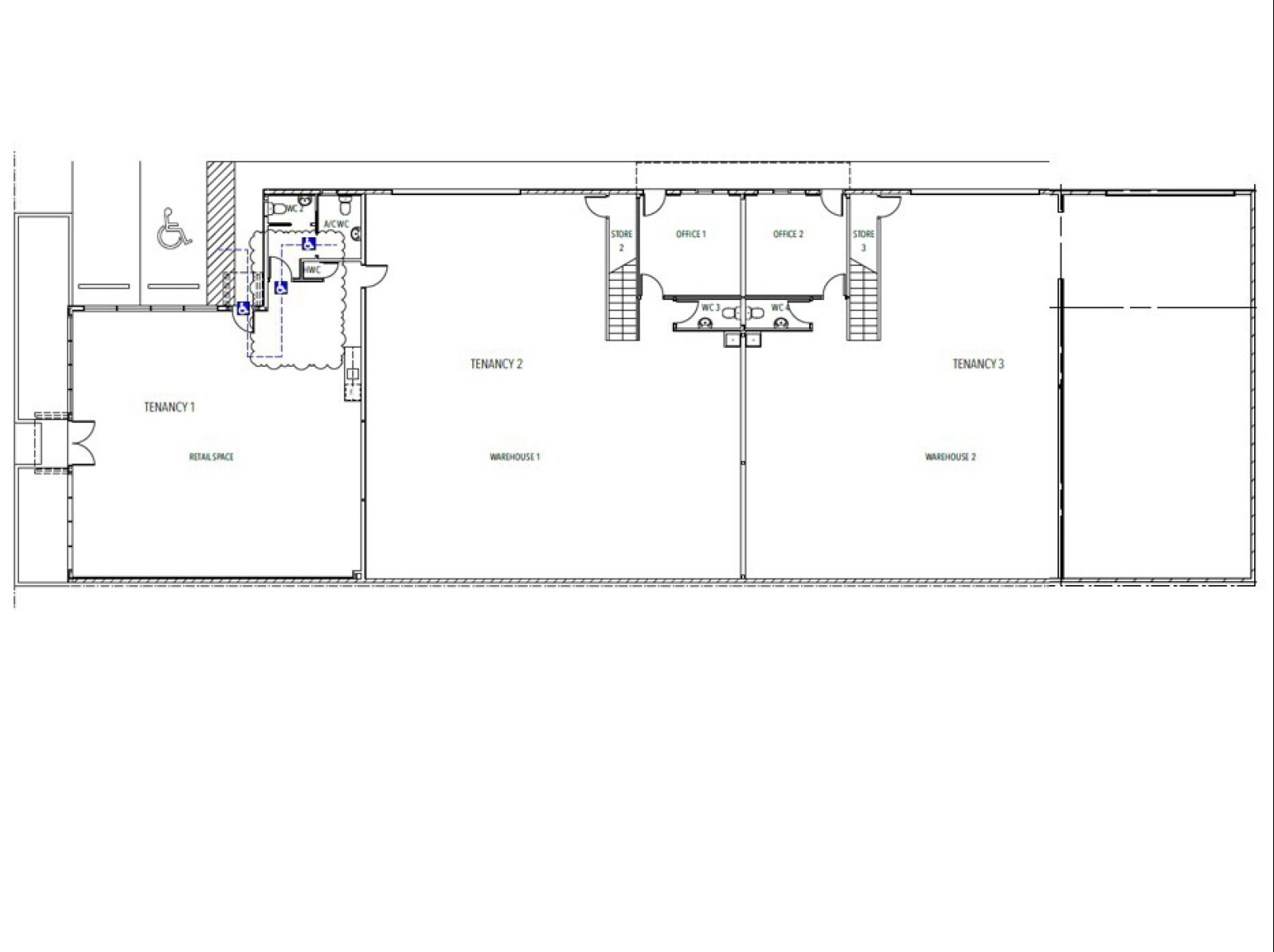
Warehouse/Prime Location, Milson - New Build
This warehouse on Milson Line (just off Tremaine Ave) is part of a "new build" industrial complex that includes a showroom/retail premises and another warehouse premises. The 227m2 (approx) space can be leased independently or including the adjoining 103m2 (approx) showroom/retail premises. Completion is estimated as September 2025. Call for full details.
Property ID: CL2091
Tenancy 2-15 Milson Line, Milson, Palmerston North
Try Out the NZHL
Mortgage Calculator
Places we love

